Set in Shoreditch, the building is situated directly between Columbia Road Flower Market and Broadway Market in the beating heart of vibrant East London. T

Hackney Road

Array E2 8PP

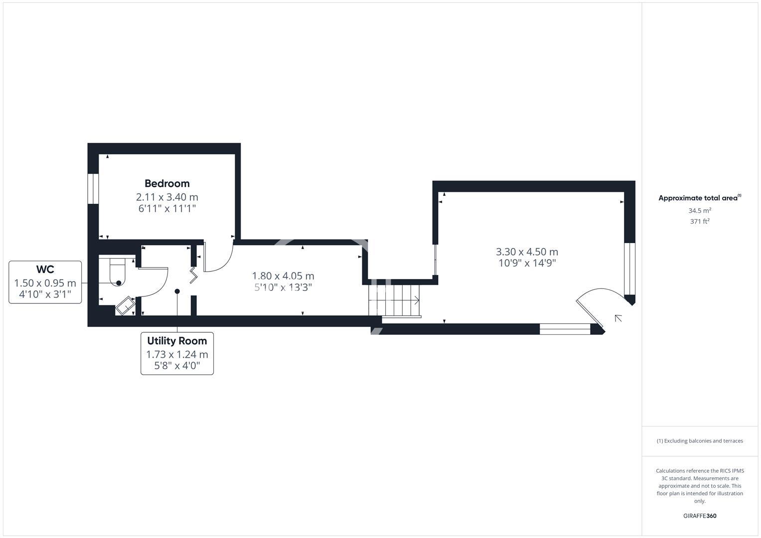
Approx floor area

371 sqft

Guide Price:
£300,000-£350,000

DESCRIPTION
A unique opportunity to acquire a commercial unit in a prominent return frontage Hackney Road commercial unit, boasting heavy footfall and a proven track record as a thriving haired and sunbed salon.

LOCATION

Set in Shoreditch, the building is situated directly between Columbia Road Flower Market and Broadway Market in the beating heart of vibrant East London. The area has excellent foot-fall with a dense residential populous and 1,000’s of companies within a 15 minute walking radius. The area is particularly popular with 'creatives' and those working in the tech industries or launching new start-ups. Hackney road is a destination location with a thriving art scene, trendy bars, and independent cafes, stores and boutiques making it a cultural hotspot and an exciting area to buy a property. Bustling Brick Lane and Redchurch Street are both within a short walk.

The unit is within a short walk of Hoxton and Shoreditch High Street Overground stations, providing seamless connections across London. Old Street, Bethnal Green and Liverpool Street Underground stations are also nearby, granting easy access to the Northern, Central, Circle, Hammersmith & City, and Metropolitan lines.

Multiple major bus routes—including the 26, 55, 149, 205, 242, and 243—stop just steps from the property, ensuring convenient travel from all corners of the city, day and night.

AMENITIES

•. Treatment room
•Kitchenette
•Gas central heating

ACCOMMODATION
Gross Internal Area: 371 Sq Ft

LEASEHOLD
999 years

BUSINESS RATES
Parties are advised to make their own enquires with the local authority.

LEGAL COSTS
Each party bear own legal costs.

VIEWING
Strictly by appointment through Peach Properties”

Are you looking
FOR A PROPERTY TO RENT?

Please register your details below, with a brief description of what kind of space you’re looking for, and a member of our team will be in touch!

Bedrooms
1
2
3
4+