Opportunity to acquire a well established restaurant over 1490 square feet available on a new lease.

High Road

Whetstone N20 9HH

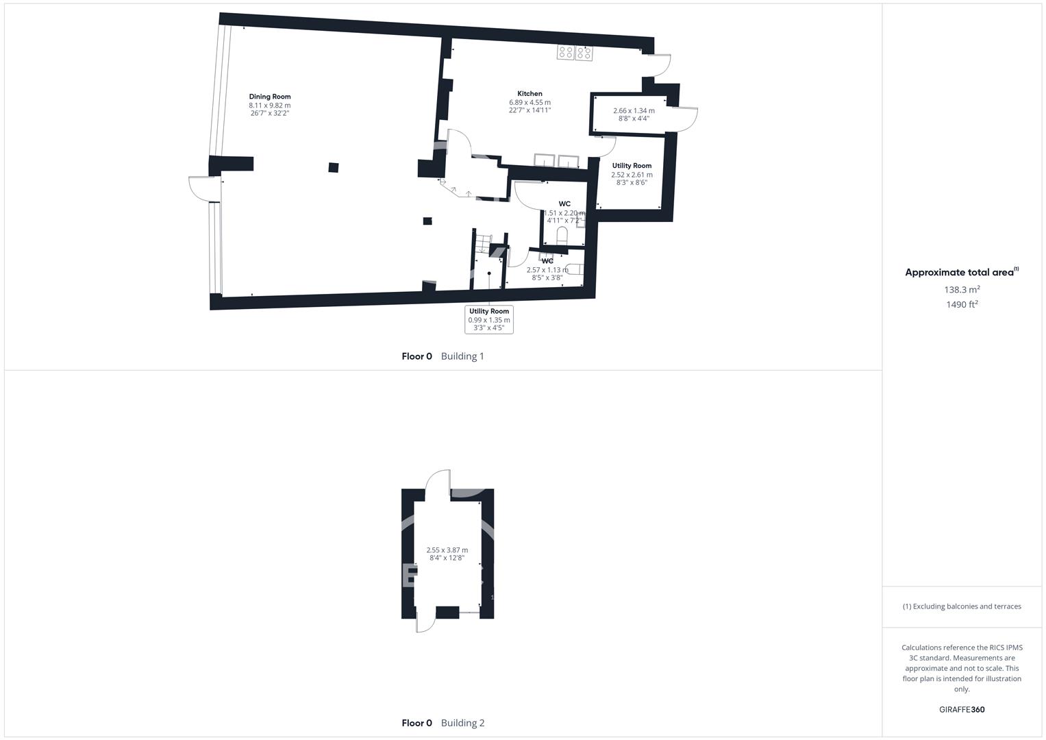
Approx floor area

1490 sqft

LOCATION
Located on the busy High Road in Whetstone, is a prime spot for a restaurant, benefiting from strong visibility, consistent footfall, and an affluent local customer base. The unit is located on the ground floor of a mixed used building.. The property offers great transport links with Totteridge & Whetstone Station (Northern Line) –5 mins walk, Oakleigh Park Rail Station – 12 mins, Multiple bus routes directly outside, Parking available on-street and nearby.

DESCRIPTION
The property is currently operating as a well established Indian restaurant with an open plan seating area and Bar to the rear of the dinning area, with separate male and female WC's. To the rear of the property is a well maintained large kitchen with full extraction, staff W.C, storage room and Walk-in cold room and walk-in freezer.

Premium sought for benefit of fixtures, fitting, lease terms and going concern - Offers invited

AMENITIES
Extraction
6x ring burner
1x Microwave
2x Fridges
1x Grill
1x Ice machine
dishwasher
2 x sinks
WC
Bar
CCTV

ACCOMMODATION
Gross Internal Area: 1490 Sq ft (138.8 Sq M)

TERMS
New Lease 15 year lease INSIDE the Landlord and Tenant Act 1954 subject to rent reviews every 5 years. - No break clause.

Business Rates
Parties are advised to make their own enquires with the local authority.

LEGAL COSTS
Each party bear own legal costs.

VIEWING
Strictly by appointment through Peach Properties

Are you looking
FOR A PROPERTY TO RENT?

Please register your details below, with a brief description of what kind of space you’re looking for, and a member of our team will be in touch!

Bedrooms
1
2
3
4+