A well-presented ground floor light industrial unit situated within an established commercial area in Tottenham. The property offers a versatile open-plan layout, making it suitable for a variety of uses including light manufacturing, storage, distribution, or workshop space (subject to necessary consents).

Vale Road

Tottenham N4 1TD

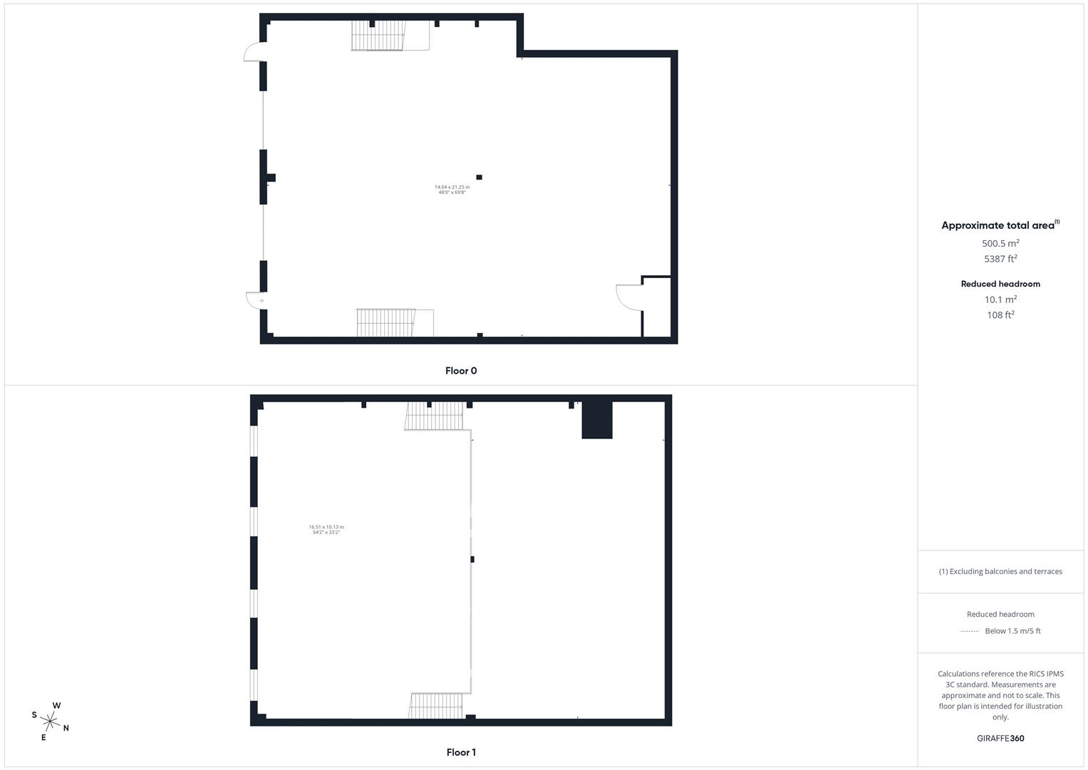
Approx floor area

5387 sqft

LOCATION
The property benefits from excellent connectivity to the local and wider road network. The A406 North Circular Road is located approximately 1.5 miles to the north, providing fast access across North London and linking directly to the M25 Motorway, which is 10 miles to the north-east. This makes the unit particularly well positioned for logistics and regional distribution.
Public transport links are also strong. Seven Sisters Station is within approximately 0.7 miles, offering access to the Victoria Line and Overground services, while Tottenham Hale Station is around 1 mile away, providing further Underground (Victoria Line), National Rail, and Stansted Express connections.

Overall, the property benefits from a strategic North London location with excellent road and public transport accessibility.

DESCRIPTION
A well-presented ground floor light industrial unit situated within an established commercial area in Tottenham. The property offers a versatile open-plan layout, making it suitable for a variety of uses including light manufacturing, storage, distribution, or workshop space (subject to necessary consents).

The unit benefits from excellent natural light, good ceiling height, and convenient loading access, facilitating efficient day-to-day operations. The space is accessed directly from Vale Road, providing ease of entry for deliveries and staff.

ACCOMMODATION
Gross Internal Area: 5283 Sq ft (500.5 Sq M)

AMENITIES
Demised Loading Bay
6.45m Ceiling heights
3.3m Roller Shutters
3.15m Mezzanine height
On site cafe
On site parking
24/7 security and access
On site Gym
Cycle Storage

TERMS
New FRI Lease or License - Terms to be agreed

BUSSINESS RATES
Parties are advised to make their own enquires with the local authority.

SERVICE CHARGE
£4.52 per sq ft

LEGAL COSTS
Each party bear own legal costs.

VIEWING
Strictly by appointment through Peach Properties

Are you looking
FOR A PROPERTY TO RENT?

Please register your details below, with a brief description of what kind of space you’re looking for, and a member of our team will be in touch!

Bedrooms
1
2
3
4+